这家科技公司的设计灵感来自于未来感与功能性的完美结合。设计师采用了鲜明的黑白对比,这一元素贯穿于整个空间,为公司的工作环境注入了现代感。白色的桌子与黑色的门板相得益彰,营造出清爽利索的视觉效果。空间的功能区域被巧妙地利用灰色调来区分,不仅创造了轻重对比,还将不同部分分隔开,以提高工作效率。局部墙面采用了金属材质,打造出独特的圆弧造型。这种设计不仅增加了空间的反光效果,还减少了金属冷硬感,创造了微妙的平衡。
- 项目地点: 中国西安
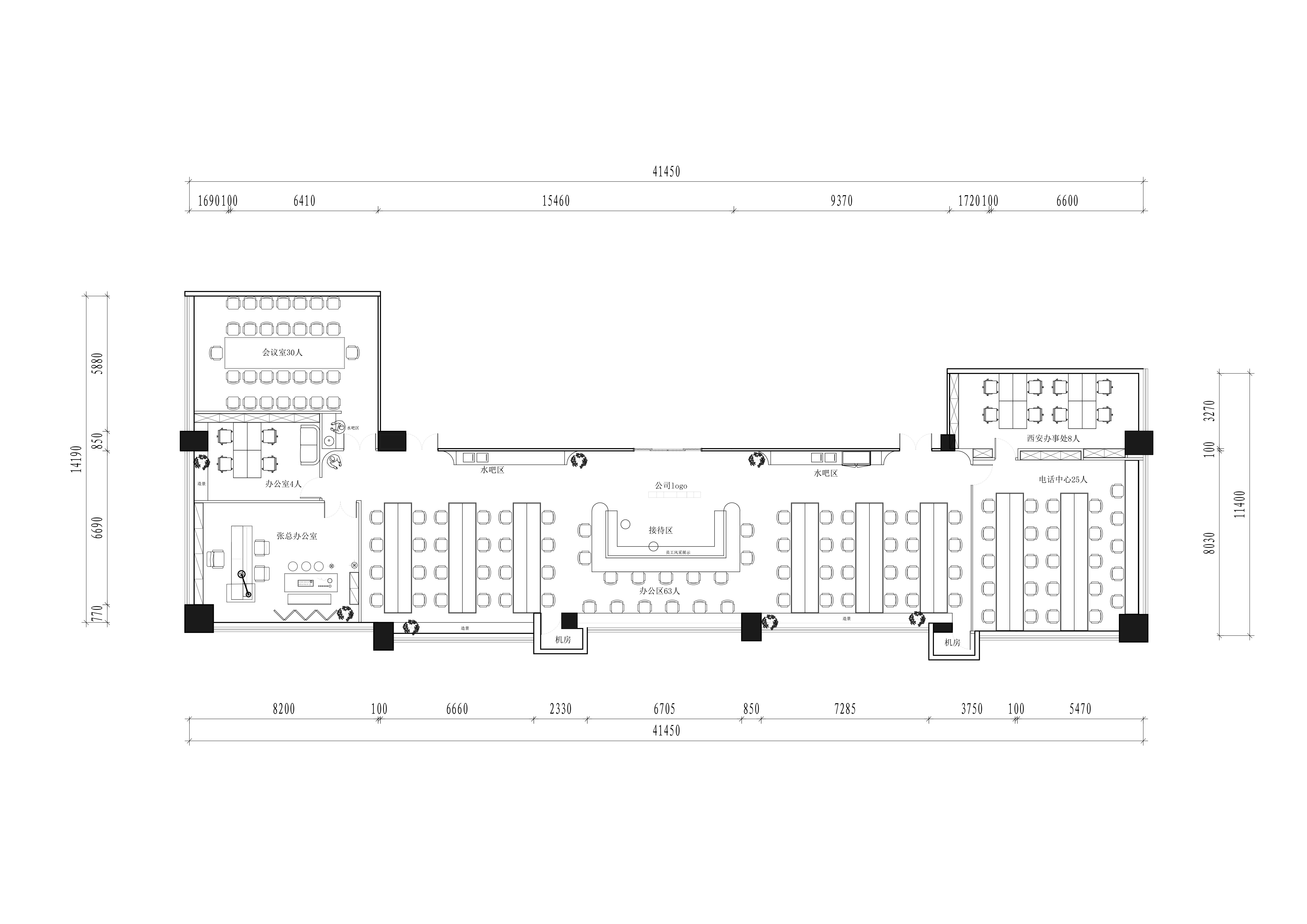
- 项目类型: 办公空间
- 设计面积: 300㎡
- 工作范围: 全案设计
- 材料运用: 乳胶漆 塑胶地板 烤漆 钢化玻璃
.jpg)
.jpg)
.jpg)
.jpg)
.jpg)
设计思路&理念
科技公司的设计重点在于干净利索以及未来感的营造,我们选择了白色的桌子来搭配黑色的门板造型,用强烈的黑白对比度来凸显空间的个性,通过灰色的轻重区分来划分功能区,局部墙面采用金属材质做圆弧造型,高反光材质对于空间质感提升是很明显的,而圆弧又可以减少金属给人的冷情感,这是一种微妙的平衡;在接待区,我们稍微加入了一点暖色的灯光及色块软装,用来营造具有亲近感的会客区。
“这个科技公司的设计简介了现代感和未来感的完美融合。黑白对比的干净利索氛围为员工创造了高效的工作环境,同时也展示了公司对创新和科技的承诺。这个设计将不仅提高工作效率,还为公司赋予了独特的品牌形象。我们感到很满意。”
郑总
负责人