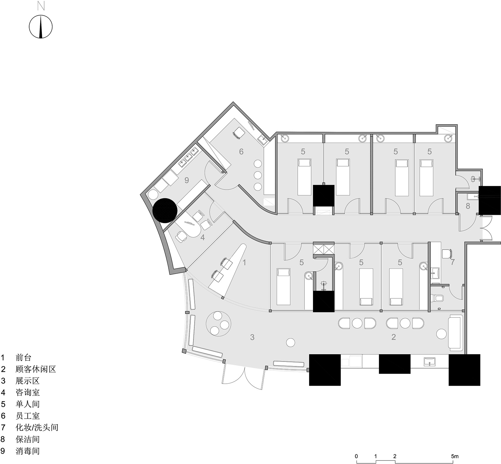
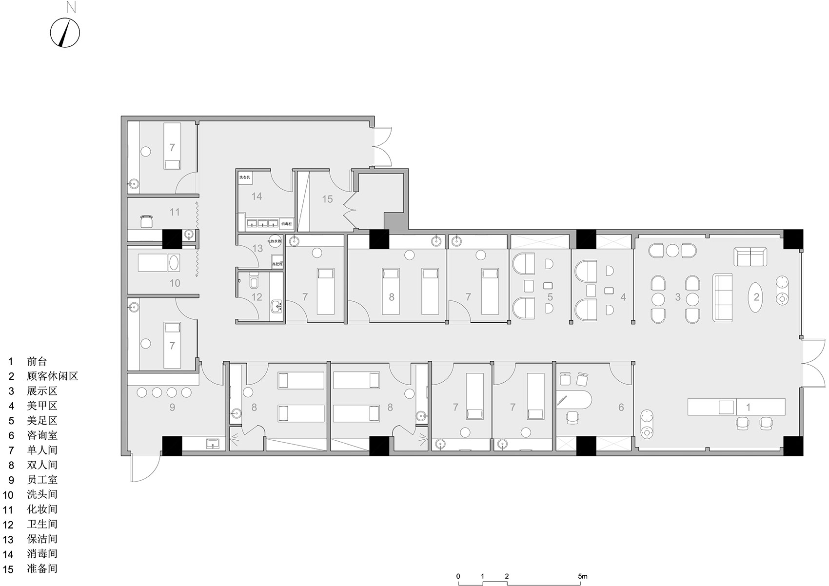
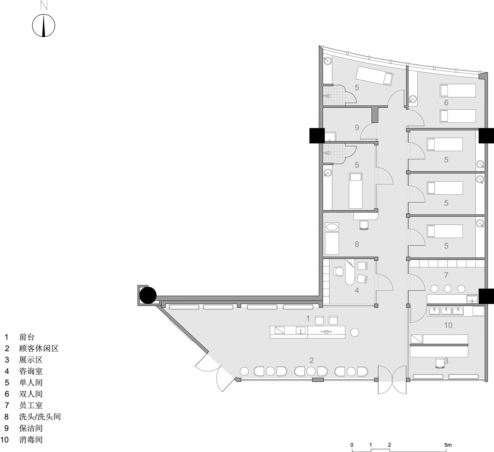
本案例的设计灵感来源于水仙花,以白色为主调,搭配绿色植物,创造出清新自然的空间氛围。设计师利用空间的高低差和光影变化,增加了空间的层次感和立体感。同时,采用了木质元素和纤维元素的运用,为空间增加了温馨感和柔和感。
- 项目地点: 中国西安
- 项目类型: 商业展览
- 设计面积: 300㎡
- 材料运用: 不锈钢 乳胶漆 塑胶地板 钢化玻璃





设计思路
设计师以水仙花为设计灵感,将其纯洁、自然、清新的气质融入到空间中,以白色为主色调,搭配绿色植物和木质元素,营造出舒适自然的感觉。同时,设计师运用高低差和光影变化,增加空间的层次感和立体感,为顾客创造出独特的美容体验。
“整个空间让人感觉非常清新自然,同时也非常温馨舒适。设计师的巧妙运用了绿色植物和木质元素,使得整个空间非常有生机和活力。我们的顾客也非常喜欢这个环境,每次来都感觉心情愉悦,身心都得到了放松。”
方总
负责人