人们在很多时候都会介于客观条件而被迫妥协,我们尝试加入了一点点的情绪:没有人规定商住房只能简单收拾,也没有人圈定在控制成本的前提下只能”四白一落地“,这次,我们与业主商定来一次反差,在这个所有人都采用”简约装修“的社区,在有限的预算下,通过设计的魅力,让它脱颖而出,如同我们自身一样。
- 项目地点: 中国西安
- 项目类型: 住宅社区
- 设计面积: 75㎡
- 工作范围: 全案设计 施工落地
- 材料运用: 乳胶漆 地砖 肌理漆 钢化玻璃 饰面板
.jpg)
.jpg)
.jpg)
.jpg)
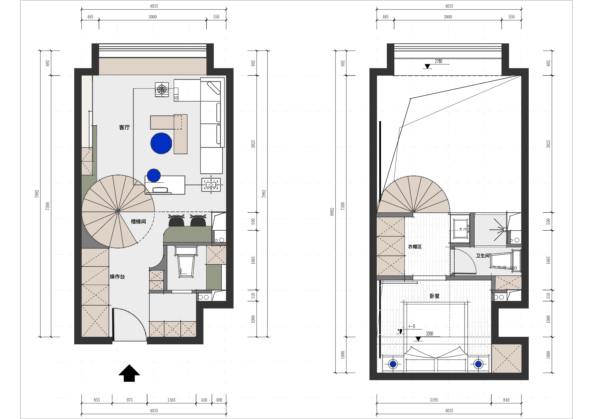
设计思路
本案设计意在突破大家对于小型LOFT空间的“刚需”感受,并不是因为“小”所以只能设计基础需求,当我们尝试在LOFT中带入点“奢侈”(挑空)之后,全新的感觉应运而生,达到一种降低预算与视觉观感提升的效果;小空间,也可以给人带来相当不错的大气感,这在另外一个维度和业主本身的观念匹配:可以不用,如果用,不将就;不随大流观念,勇于突破。进而寻找到自己的“答案”。
“这个家装设计公司的设计师非常专业,对每一个细节都极为关注,我们的家居空间在他们的帮助下焕然一新,从此成为了我们的心灵港湾和家的象征。他们的设计方案不仅满足了我们的实际需求,更是展现了我们的个性和品味。我们非常满意,感谢这个出色的团队!”
高先生
业主