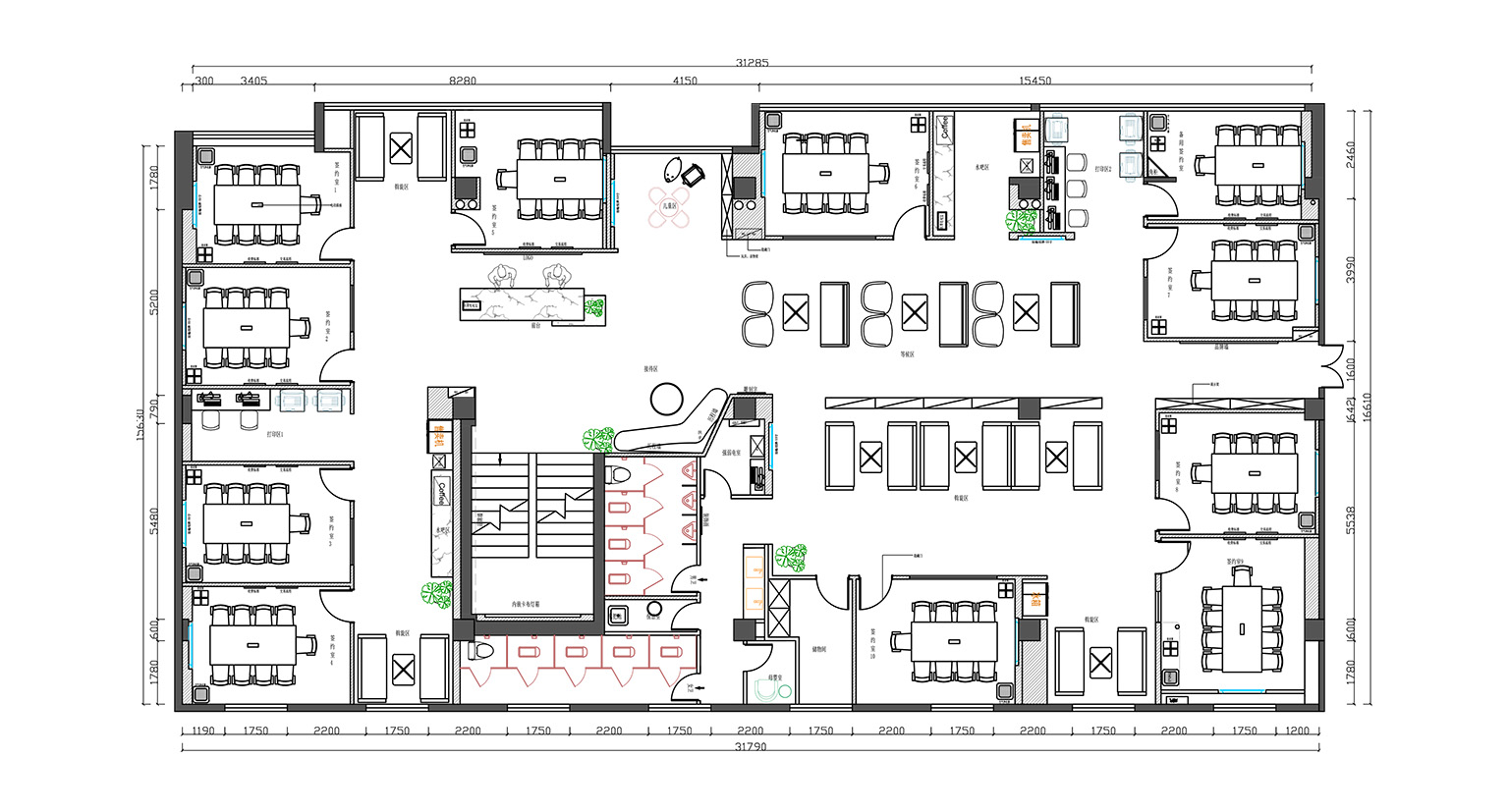
贝壳,从进入大众视野开始,就站在时代的浪潮之上。源源不断的扩展着行业发展的边界,作为行业趋势的前沿,也迫切需要一个开放、多元的环境。故,流动、交互在功能使用上就变得异常重要。我们在21年的夏天接到这份委托,甲方的一些刚性诉求已经明确,但是在布局规划和空间氛围上一直期待新提案,我们很荣幸参与竞标,并且尽可能的充分发挥自己对于这个项目的一些设计思路。
- 项目地点: 中国西安
- 项目类型: 商业展览
- 设计面积: 500m²
- 工作范围: 全案设计
- 材料运用: 不锈钢 地砖 型材 钢化玻璃 饰面板
.jpg)
.jpg)
.jpg)
.jpg)
.jpg)
.jpg)
.jpg)
设计思路&理念
简洁干净的环境会便于交易者们思考,略显温馨的配色让人们心理上减少距离感。因此,我们任务明确:排除所有可能会影响交易心态的环境因素,环境体验居于首位,去打造既开放舒适、也不缺乏私密性的服务型空间。
“店面升级带来的改善是显而易见的,我认为他们最大的特色是专注设计又不局 限于设计,比如控价,这对品牌拓展来说非常重要,而我们在这方面达成了很好的默契。”
crilce
项目负责人